PROVISIONSFREI! 3-Zimmer Penthouse mit Dachterrasse – für Komfort und Ambiente
ERA - Ihr Spezialist für ImmobilienPROVISIONSFREI! 3-Zimmer Penthouse mit Dachterrasse – für Komfort und Ambiente
Objektbeschreibung
Diese Penthouse-Wohnung mit 71,98m² Wohnfläche, bietet unter anderem viel Komfort in einem großzügigen und freundlichen Ambiente. Sie verfügt über 3 individuelle Räume, Flur, ein Vollbad und eine Küche. Zusätzlich gibt es eine reizende Dachterrasse, die sich ideal dazu eignet, einen langen Tag ausklingen zu lassen.
Ausstattung
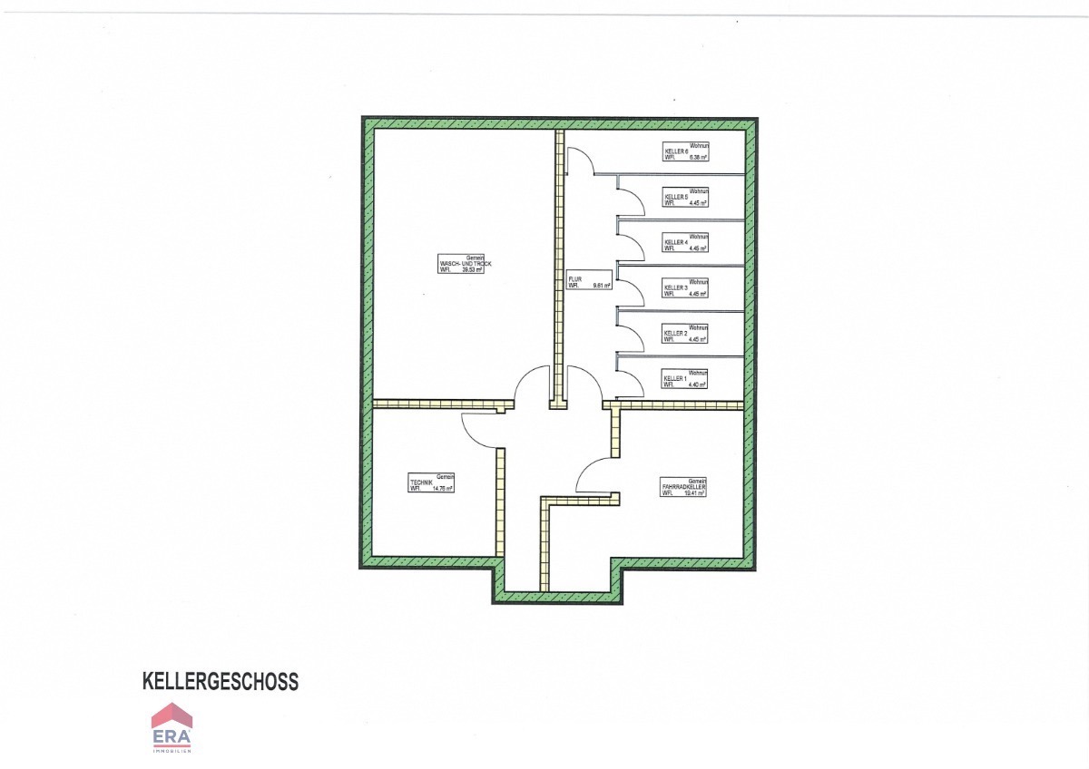
Das gesamte Gebäude befindet sich in Fertigstellung, welcher voraussichtlich auf 05.2022 beläuft und bietet insgesamt 6 Wohnungen, die zum Verkauf stehen. Das Gebäude wird Stein auf Stein in konventioneller Massiv-Bauweise errichtet. Jede Wohnung wird mit speziellen Fachkenntnissen individuell geplant und viel Liebe zum Detail anhand der neusten Technik errichtet. Im Kellergeschoss des Projektes befinden sich die einzelnen Kellerabteile, die entsprechend zu jeder Wohnung zugeordnet wurden. Hier befinden sich ebenfalls ein Waschraum und ein Fahrradkeller. Bei der Fassadengestaltung wurden die Stilelemente benachbarter Wohngebäude aufgegriffen und gekonnt mit modernen Elementen kombiniert.
- Bei einer reservierung vor dem 01.05.2021 ist der Stellplatz im Kaufpreis enthalten. Ab dem 01.05.2021 sind für den Stellplatz 8000€ inkl. MwSt. zu zahlen.
// Maler/-Tapezierarbeiten sowie Boden/-Fliesenbeläge sind nicht im Preis enthalten //
-Stellplatz
Lage
Alzey ist eine verbandsfreie Stadt mit über 18.000 Einwohnern und Sitz der Kreisverwaltung des Landkreises Alzey-Worms in Rheinhessen im südöstlichen Rheinland-Pfalz.
Sonstige Angaben
Bei Rückfragen stehe ich Ihnen jederzeit persönlich oder telefonisch zur Verfügung.
Wir freuen uns auf Ihre schriftliche Kontaktaufnahme über das Kontaktformular.
Besichtigungen sind nur in unserer Begleitung und nach Terminvereinbarung möglich.
Zögern Sie nicht zu lange und vereinbaren Sie noch heute einen Besichtigungstermin.
„Weitere interessante Immobilien finden Sie unter www.worms.erasuisse.de
Gerne helfen wir Ihnen auch beim Verkauf oder der Vermietung Ihrer Immobilie.“
Preise & Kosten
| Kaufpreis | 258.000 |
| Provisionspflichtig | Nein |
| Währung | EUR |
Größe & Zustand
| Wohnfläche | 71,99 m² |
| Zimmer | 3 |
Energieausweis
| Befeuerungsart | LUFTWP |

Kontaktaufnahme zu Ihrem Immobilienberater




